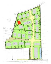
Schléiwenhaff Lot 29 avec ascenceur
AAA - Géothermie
acte sur Terrain 5a83ca € 769.000,-
Construction clé en main avec architecte € 1.117.000,-
Total 3% TVA incluse € 2.025.890,-
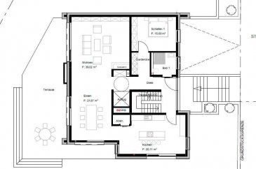
living
salle à manger
Cuisine ouverte
Salle de bain (3)
Terrasse (89.23 m2)
Jardin
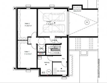
Garage - Parking couvert (2)
Cave
Buanderie
Parquet
Ascenseur
Meublé
Inst. pers. handicapées
Neuf
Ce bien est proposé par

VIE PRIVEE IMMOBILIERE
2 rue d'Amsterdam
L-1126 Luxembourg-Belair
Luxembourg
Tel : +352 26 610 930
Tel2 : +352 691 11 22 99
Fax : +352 26 610 932
Adresse email : Ecrire
Visiter le site de l'agence
CALL-BACK